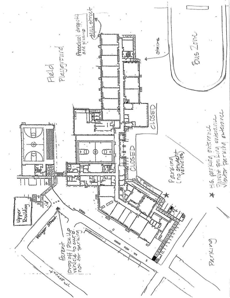
The Dufur After School Program will begin Monday, September 9. It runs Monday through Thursday from 3:30-6:30 for 3rd-12th grade students.

Please follow these procedures for dropping off and picking up your student.


Project Progress




Week 12 Progress




Just a reminder of the Back to School Night Wednesday August 28th. Kindergarten meet and greet, Freshman Orientation, and Senior parent meeting will be at 5:30pm. Dinner will be served at 6:00pm and classrooms will be open to visit. Parking available in the back of the school.
The Playworks training scheduled for August 26th has been canceled. A reschedule date is yet to be determined.
Week 11 Continued




Week 11 Progress




Registration today and Tuesday August 20th from 9-12 and 2-7pm. Parking is limited and the streets are busy with construction. Parking is available behind the school on the elementary play field. Access the entrance from Mill Street.
Dufur Seniors- we will be offering the SAT at Dufur this year on 10/16/19 during the school day. Please sign up with Ms. Jenny NO LATER than September 16, 2019. SAT School Day Test Materials need to be ordered ahead of time.
Juniors- we will offer the SAT again in the Spring.
YouthThink is presenting "Life of an Athlete/Pure Performance" this week. There will be an all-day student athlete & coaches training on Wednesday, August 14th and a parent/community presentation on Thursday, August 15th from 6-8 p.m. See our "News" section for more details.
Week 10 Progress!




The annual Ranger Football Camp begins on Monday August 12 and runs through Thursday August 15 at Dufur City Park from 6-8 pm. It is open to all 6th through 12th grade students that attend Dufur School.
Dufur Registration Dates are August 14th from 4-6p.m. at Celilo Education Building and in Dufur Upper Building August 15th and 20th from 9:00am to 12:00pm and 2:00 to 7:00pm both dates.
Week Nine Update




Foreign Exchange Student Host families are needed for Dufur School. Full year and part year options are available. If interested please call Andrea Dorzab, (541) 965-0163.
Week 8 Update




Week 8 Update




Week 7 Update



Week 6 Update




